
モデルハウスのコンセプトは「毎日を快適に」

ここ数年、土地代や建材・住設機器の値上がりのため、新築住宅の価格が数百万円単位で高騰しています。住宅価格は値上がりしているのに、デザイン性や素材感はむしろグレードダウンしてしまっているという状況が目立ちます。
そうした状況を踏まえ、渋谷建設は
1 建設費を抑える
3人家族くらいであれば、コンパクトな土地に30坪ほどの2階建ての家を建てることで土地代と建設費を抑えることができる。プラン次第では快適に暮らせる。
2 光熱費を安くする
高断熱と太陽光、蓄電池搭載で光熱費も抑えることができるので、住み始めてからその後何十年も続く光熱費の支払いを大幅に減らすことで家計が楽になる。
3 デザイン性・満足度はこだわる
住宅性能やデザイン性、自然素材活用、オーダーキッチンなどは住み心地、満足度に大いに影響するので、そういうこだわりは充実させる。
というチャレンジをこのモデルハウスで行いました。

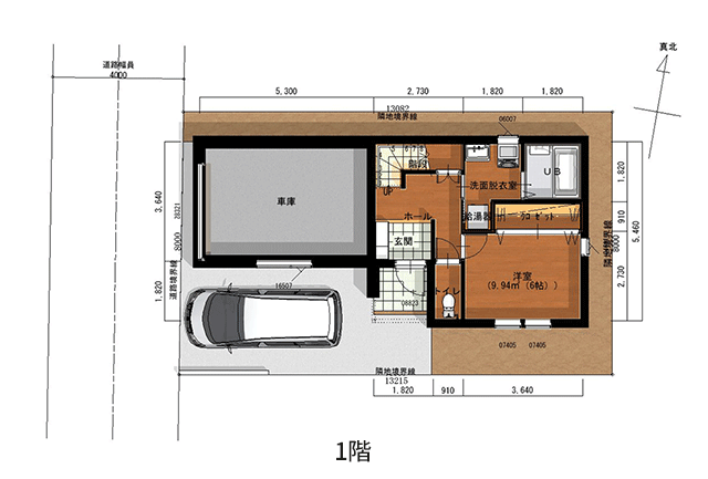
限られた敷地面積でも建設できるように、一階はカーポートと個室、玄関ホールや洗面台、トイレなど、2階にLDKを配置。敷地を最大限活用することでむしろ除雪、除草などの手間を減らすこともできます。外壁は道南杉とガルバリウムでモダンな印象を生み出しています。

シンプルな内装。玄関からすぐの場所に造作の手洗いを配置。階段下のスペースには蓄電池も。

1階の個室は高窓で近隣からの視線を避ける工夫なども。

LDKは2階に配置。キッチンハウスのオーダーキッチンを軸に、高窓、魅せる収納、照明、巾木など細部に渡るデザインに配慮しています。

2階リビングは市街地でも日射取得は十分。天気が良ければ五稜郭タワーも一望できます。

ナラの無垢床、造作のテレビボードなどを配するリビング。トイレもモダンデザインでイメージを統一しています。住宅性能やデザインはしっかり確保しながら、家族の人数に会わせたコンパクトな設計で価格を抑える工夫。
ご興味ある方はぜひご予約をお願いします。


【建築概要】
敷地面積105.17㎡(31.81坪)
建物面積
1階床面積:50.75㎡ 2階床面積:54.07㎡ 延床面積:104.82㎡(31.7坪)
間取り:2LDK(1階 洋室6帖、車庫11.5帖、2階 LDK19帖 洋室6帖、WCZ3帖)
構造・工法:在来工法(テックワン金物工法)耐震等級3
断熱(壁):HGW16K 105ミリ+押出法PSF3種b 100ミリ
断熱(天井):吹込みGW18K 400ミリ
断熱(窓):APW430 (樹脂トリプルガラス)
換気:ダクトレス第一種換気(熱交換あり)
暖房:1F床下エアコン 2Fエアコン
装備と住宅性能:太陽光発電6.67kW、蓄電池7.0kWh。UA値:0.2 C値:0.4 長期優良住宅認定、省令準耐火構造、
駐車場:2台
見学は以下の予約フォームからご予約ください。
住所 函館市鍛治1丁目6−1
スタッフが常駐しておりませんのでご見学の際は事前にご予約下さい。
営業時間 11:00 ~ 16:00 (要予約) 時間外予約も対応いたします。
お問合せ 0120-913-563 (090-3774-0720 担当 渋谷)